物件情報

物件情報

429番 山国 守実

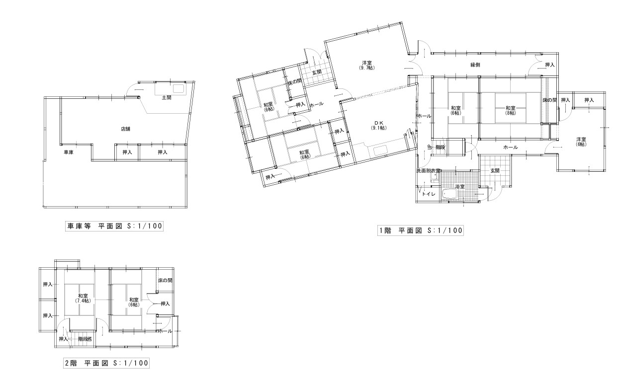
山国 8DK 売買物件

希望価格 300万円

  • 物件名
    山国 守実
  • 登録番号
    429
  • エリア
    山国
  • 間取り
    8DK
  • 構造
    木造かわら・セメントかわら合金メッキ鋼板ぶき3階建て
  • 延床面積
    256.35 ㎡
  • 敷地面積
    479.19 ㎡
  • 住所
    大分県中津市山国町守実295番地1
  • 築年(経過年数)
    1969 年(56年)

契約形態/価格

  • 賃貸/売買
    売買物件
  • 家賃・価格
    300万円
マップ

マップ